Official Stockist

  • Your Shopping BasketYour Shopping Baske

    Empty
  • SSL Secure Connection


Official Stockist

Diagram & User Manual Search

Quickly locate your appliance and order replacement parts using our secure online payment facility.

  • Over 20,000 appliances available
  • Simply click on the part to buy
  • Secure online payment
  • Next day delivery

Detailed Search




  

Specific Search



  

Created by Gas Engineers, for Gas Engineers • We only sell Genuine Boiler Spares • HSP - Where The Trade Buy

ARISTON
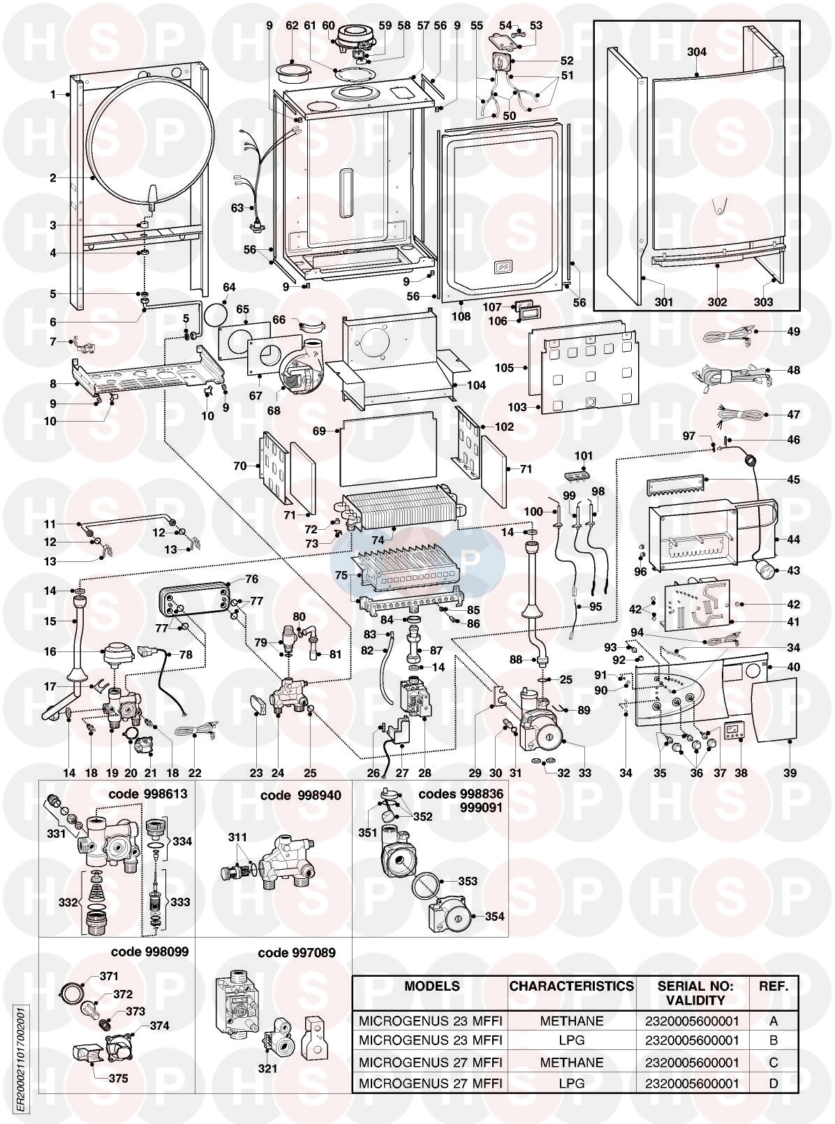
MICROGENUS 23 MFFI EDITION 2 (FROM SERIAL NO 2320005600001 TO 2320021400002) - (Exploded View)
Appliance Code: 47-116-14 ED 2

Appliance Diagram


Exploded View diagram for Ariston Microgenus 23 MFFI Edition 2 (From Serial No 2320005600001 To 2320021400002)Click the diagram to open it on a new page

You can then pinch & zoom to adjust the size.

2 Part number 998616, EXPANSION VESSEL 6L EXPANSION VESSEL 6L
Ariston part no. 998616
£82.16
3 Part number 998776, BUSH (EXPANSION VESSEL) BUSH (EXPANSION VESSEL)
Ariston part no. 998776
£6.63
4 Part number 998581, LOCK NUT 3/8" LOCK NUT 3/8"
Ariston part no. 998581
£4.54
5 Part number 573521, GASKET 3/8" GASKET 3/8"
Ariston part no. 573521
£0.94
6 Part number 999102, PIPE (EXPANSION VESSEL) PIPE (EXPANSION VESSEL)
Ariston part no. 999102
£8.87
7   CABLE HOLDER
Ariston part no. 998580
£1.91
9 Part number 570717, SPRING (FASTENING) SPRING (FASTENING)
Ariston part no. 570717
£4.21
10 Part number 995492, PIVOT PIVOT
Ariston part no. 995492
£5.30
10 Part number 998569, NOW USE 995492 PIVOT NOW USE 995492 PIVOT
Ariston part no. 998569
 
11 Part number 998589, BY-PASS PIPE BY-PASS PIPE
Ariston part no. 998589
£8.10
12 Part number 998077, O-RING O-RING
Ariston part no. 998077
£1.53
13 Part number 998064, SPRING (BY-PASS PIPE) SPRING (BY-PASS PIPE)
Ariston part no. 998064
£3.20
14 Part number 573520, GASKET 3/4" GASKET 3/4"
Ariston part no. 573520
£0.94
15 Part number 999978, PIPE (C.H. FLOW) PIPE (C.H. FLOW)
Ariston part no. 999978
£24.94
15 Part number 999103, NOW USE 999978 PIPE (FLOW) NOW USE 999978 PIPE (FLOW)
Ariston part no. 999103
 
16 Part number 997147, MOTOR (3-WAY VALVE) MOTOR (3-WAY VALVE)
Ariston part no. 997147
£35.27
17 Part number 997077, FIXING CLIP (MOTOR) FIXING CLIP (MOTOR)
Ariston part no. 997077
£1.54
18   TEMPERATURE PROBE
Ariston part no. 998458-01
£7.34
18 Part number 569236, NOW USE 998458-01 TEMPERATURE PROBE NOW USE 998458-01 TEMPERATURE PROBE
Ariston part no. 569236
 
18 Part number 998458, NOW USE 998458-01 TEMPERATURE PROBE NOW USE 998458-01 TEMPERATURE PROBE
Ariston part no. 998458
 
19 Part number 65105060, FLOW GROUP FLOW GROUP
Ariston part no. 65105060
£187.45
19 Part number 998613, NOW USE 65105060 FLOW GROUP NOW USE 65105060 FLOW GROUP
Ariston part no. 998613
 
20 Part number 571547, DIAPHRAGM (MAIN FLOW SWITCH) DIAPHRAGM (MAIN FLOW SWITCH)
Ariston part no. 571547
£6.52
21 Part number 65100519, MAIN FLOW SWITCH KIT MAIN FLOW SWITCH KIT
Ariston part no. 65100519
£47.05
21 Part number 998099, NOW USE 65100519 MAIN CIRCUIT FLOW SWITCH NOW USE 65100519 MAIN CIRCUIT FLOW SWITCH
Ariston part no. 998099
 
22 Part number 65101322, CABLE (TEMPERATURE PROBES) CABLE (TEMPERATURE PROBES)
Ariston part no. 65101322
£15.48
22 Part number 998632, NOW USE 65101322 CABLE (TEMPERATURE PROBES) NOW USE 65101322 CABLE (TEMPERATURE PROBES)
Ariston part no. 998632
 
23 Part number 999075, D.H.W. FLOW SWITCH D.H.W. FLOW SWITCH
Ariston part no. 999075
£33.70
24 Part number 999673, RETURN GROUP RETURN GROUP
Ariston part no. 999673
£198.02
24 Part number 998940, NOW USE 999673 RETURN GROUP NOW USE 999673 RETURN GROUP
Ariston part no. 998940
 
25 Part number 998424, O-RING O-RING
Ariston part no. 998424
£1.09
26 Part number 574279, GASKET (SPARK GENERATOR) GASKET (SPARK GENERATOR)
Ariston part no. 574279
£1.45
27 Part number 65100514, SPARK GENERATOR (KIT) SPARK GENERATOR (KIT)
Ariston part no. 65100514
£30.16
27 Part number 998645, NOW USE 65100514 SPARK GENERATOR NOW USE 65100514 SPARK GENERATOR
Ariston part no. 998645
 
28 Part number 65100516, GAS VALVE (SIT 845 SIGMA) GAS VALVE (SIT 845 SIGMA)
Ariston part no. 65100516
£157.15
28 Part number 997089, NOW USE 65100516 gas valve NOW USE 65100516 GAS VALVE
Ariston part no. 997089
 
29 Part number 999162, PUMP BRACKET PUMP BRACKET
Ariston part no. 999162
£3.84
30 Part number 999598, PUMP PLUG PUMP PLUG
Ariston part no. 999598
£5.61
30 Part number 998568, NOW USE 999598 PUMP PLUG NOW USE 999598 PUMP PLUG
Ariston part no. 998568
 
31 Part number 997182, GASKET GASKET
Ariston part no. 997182
£1.74
32 Part number 999100, LOCK WASHER LOCK WASHER
Ariston part no. 999100
£0.79
33 Part number 996614, KIT FOR REAR PUMP ATTACHMENT KIT FOR REAR PUMP ATTACHMENT
Ariston part no. 996614
£256.70
33 Part number 998836, NOW USE 996614 PUMP (GOLD 50) NOW USE 996614 PUMP (GOLD 50)
Ariston part no. 998836
 
33 Part number 999091, NOW USE 996614 PUMP (GOLD 60) NOW USE 996614 PUMP (GOLD 60)
Ariston part no. 999091
 
34   L.E.D.
Ariston part no. 998570
£3.40
35 Part number 998575, SPINDLE (TEMPERATURE KNOB) SPINDLE (TEMPERATURE KNOB)
Ariston part no. 998575
£6.71
36 Part number 998603, CONTROL KNOB CONTROL KNOB
Ariston part no. 998603
£6.71
37 Part number 998572, SPINDLE (ON/OFF KNOB) SPINDLE (ON/OFF KNOB)
Ariston part no. 998572
£6.71
38 Part number 997207, TIME CLOCK TIME CLOCK
Ariston part no. 997207
£100.90
39   FRONT COVER DOOR
Ariston part no. 65100557
£6.25
39 Part number 999059, NOW USE 65100557 FRONT COVER NOW USE 65100557 FRONT COVER
Ariston part no. 999059
 
40   MECHANICAL TIMER 3V DC
Ariston part no. 65120831
£84.11
40 Part number 999715, CONTROL PANEL CONTROL PANEL
Ariston part no. 999715
£8.68
40 Part number 998824, NOW USE 999715 CLOCK NOW USE 999715 CLOCK
Ariston part no. 998824
 
40 Part number 999599, NOW USE 65120831 MECHANICAL CLOCK NOW USE 65120831 MECHANICAL CLOCK
Ariston part no. 999599
 
41 Part number 65101732, BOX CMP3-MCU HS MI/MFFI 3S BOX CMP3-MCU HS MI/MFFI 3S
Ariston part no. 65101732
£239.41
41 Part number 998947, NOW USE 65101732 PRINTED CIRCUIT BOARD (CMP1-FFI) NOW USE 65101732 PRINTED CIRCUIT BOARD (CMP1-FFI)
Ariston part no. 998947
 
42 Part number 569711, NYLON BUSH (10mm) NYLON BUSH (10MM)
Ariston part no. 569711
£3.21
43 Part number 65100695, PRESSURE GAUGE PRESSURE GAUGE
Ariston part no. 65100695
£13.55
43 Part number 999245, NOW USE 65100695 PRESSURE GAUGE NOW USE 65100695 PRESSURE GAUGE
Ariston part no. 999245
 
44 Part number 999604, PCB BOX PCB BOX
Ariston part no. 999604
£10.44
44 Part number 998952, NOW USE 999604 CONTROL PANEL NOW USE 999604 CONTROL PANEL
Ariston part no. 998952
 
45 Part number 998953, CABLE HOLDER COVER CABLE HOLDER COVER
Ariston part no. 998953
£4.27
46 Part number 571548, U-CLIP U-CLIP
Ariston part no. 571548
£4.35
47 Part number 995979, CABLE (POWER SUPPLY) CABLE (POWER SUPPLY)
Ariston part no. 995979
£10.04
47 Part number 998861, NOW USE 995979 CABLE (POWER SUPPLY) NOW USE 995979 CABLE (POWER SUPPLY)
Ariston part no. 998861
 
48 Part number 995317, HIGH VOLTAGE WIRING HIGH VOLTAGE WIRING
Ariston part no. 995317
£16.46
48 Part number 999153, NOW USE 995317 HIGH VOLTAGE WIRING NOW USE 995317 HIGH VOLTAGE WIRING
Ariston part no. 999153
 
49 Part number 998863, LOW VOLTAGE WIRING LOW VOLTAGE WIRING
Ariston part no. 998863
£10.01
50 Part number 573327, Y PIECE (AIR PRESSURE) Y PIECE (AIR PRESSURE)
Ariston part no. 573327
£6.24
51 Part number 571575, NOW USE 573576 SILICONE PIPE (POSITIVE SIGNAL) NOW USE 573576 SILICONE PIPE (POSITIVE SIGNAL)
Ariston part no. 571575
 
52 Part number 571651-01, AIR PRESSURE SWITCH 75 Pa AIR PRESSURE SWITCH 75 PA
Ariston part no. 571651-01
£42.29
52   AIR PRESSURE SWITCH 105 PA
Ariston part no. 573989-01
£53.77
52 Part number 571651, NOW USE 571651-01 AIR PRESSURE SWITCH NOW USE 571651-01 AIR PRESSURE SWITCH
Ariston part no. 571651
 
52 Part number 573989, NOW USE 573989-01 AIR PRESSURE SWITCH NOW USE 573989-01 AIR PRESSURE SWITCH
Ariston part no. 573989
 
53 Part number 997203, SUPPORT PLATE SUPPORT PLATE
Ariston part no. 997203
£6.35
54 Part number 573329, AIR INTAKE COVER AIR INTAKE COVER
Ariston part no. 573329
£6.22
55 Part number 569662, SILICONE PIPE SILICONE PIPE
Ariston part no. 569662
£6.34
56 Part number 65102772, GASKET (ADHESIVE - 14X6 mm) GASKET (ADHESIVE - 14X6 MM)
Ariston part no. 65102772
£10.13
56 Part number 998516, NOW USE 65102772 SEAL (COMBUSTION CHAMBER - 10X6) NOW USE 65102772 SEAL (COMBUSTION CHAMBER - 10X6)
Ariston part no. 998516
 
58 Part number 998565, COVER (FLUE TEST POINT) (TO 03/06) COVER (FLUE TEST POINT) (TO 03/06)
Ariston part no. 998565
£3.28
59 Part number 998636, GASKET (FLUE TEST POINT) (TO 03/06) GASKET (FLUE TEST POINT) (TO 03/06)
Ariston part no. 998636
£5.17
60 Part number 998602, OBSOLETE FLUE EXHAUST MANIFOLD OBSOLETE FLUE EXHAUST MANIFOLD
Ariston part no. 998602
 
61 Part number 998637, GASKET (FLUE COLLAR) GASKET (FLUE COLLAR)
Ariston part no. 998637
£1.65
62 Part number 998595, PLUG (AIR INTAKE) PLUG (AIR INTAKE)
Ariston part no. 998595
£6.47
63 Part number 998648, CABLE (FAN/AIR PRESSURE SWITCH) CABLE (FAN/AIR PRESSURE SWITCH)
Ariston part no. 998648
£17.76
64 Part number 998943, GASKET (FAN) GASKET (FAN)
Ariston part no. 998943
 
65 Part number 999135, PANEL (INSULATION - FAN) PANEL (INSULATION - FAN)
Ariston part no. 999135
£5.81
66 Part number 998566, FIXING CLAMP (FAN) FIXING CLAMP (FAN)
Ariston part no. 998566
£2.57
67   FIXING PLATE (FAN)
Ariston part no. 998601
£2.69
68 Part number 998894, FAN FAN
Ariston part no. 998894
£78.80
68 Part number 999204, FAN FAN
Ariston part no. 999204
£85.43
69 Part number 998640, PANEL (INSULATION - REAR) PANEL (INSULATION - REAR)
Ariston part no. 998640
£8.75
69   PANEL (INSULATION - REAR)
Ariston part no. 998896
£3.69
70   PANEL (L.H. SIDE)
Ariston part no. 995893
£7.58
70   PANEL (L.H. SIDE)
Ariston part no. 995922
£5.75
70   NOW USE 995893 PANEL (COMBUSTION CHAMBER - L/H SIDE)
Ariston part no. 998600
 
70   NOW USE 995922 PANEL (COMBUSTION CHAMBER - L/H SIDE)
Ariston part no. 998964
 
71 Part number 998639, PANEL (INSULATION - SIDE) PANEL (INSULATION - SIDE)
Ariston part no. 998639
£7.19
72 Part number 996065, OVERHEAT THERMOSTAT OVERHEAT THERMOSTAT
Ariston part no. 996065
£11.03
72 Part number 997206, NOW USE 996065 THERMOSTAT (OVERHEAT) NOW USE 996065 THERMOSTAT (OVERHEAT)
Ariston part no. 997206
 
73 Part number 998583, FIXING SPRING (OVERHEAT THERM.) FIXING SPRING (OVERHEAT THERM.)
Ariston part no. 998583
£1.86
74 Part number 998620, HEAT EXCHANGER HEAT EXCHANGER
Ariston part no. 998620
£167.29
74 Part number 998893, MAIN EXCHANGER MAIN EXCHANGER
Ariston part no. 998893
£254.95
75 Part number 996158, BURNER NG BURNER NG
Ariston part no. 996158
£104.03
75   BURNER LPG
Ariston part no. 998669
£85.21
75 Part number 998887, BURNER NG BURNER NG
Ariston part no. 998887
£114.16
75   BURNER LPG
Ariston part no. 998939
£68.11
75 Part number 998618, NOW USE 996158 BURNER 12 RAMP (NATURAL GAS) NOW USE 996158 BURNER 12 RAMP (NATURAL GAS)
Ariston part no. 998618
 
76 Part number 571646, DHW HEAT EXCHANGER DHW HEAT EXCHANGER
Ariston part no. 571646
£70.18
76 Part number 998483, DHW HEAT EXCHANGER DHW HEAT EXCHANGER
Ariston part no. 998483
£82.30
76 Part number 573295, NOW USE 998483 SECONDARY EXCHANGER (P-TYPE 27KW) NOW USE 998483 SECONDARY EXCHANGER (P-TYPE 27KW)
Ariston part no. 573295
 
77 Part number 573825, O-RING 4075 3,53 X 18,64 O-RING 4075 3,53 X 18,64
Ariston part no. 573825
£2.97
78 Part number 996336, CABLE (POWER SUPPLY - MOTOR) CABLE (POWER SUPPLY - MOTOR)
Ariston part no. 996336
£12.34
78 Part number 998629, NOW USE 996336 CABLE (3-WAY VALVE MOTOR) NOW USE 996336 CABLE (3-WAY VALVE MOTOR)
Ariston part no. 998629
 
79 Part number 573172, PRESSURE RELIEF VALVE (1/2" 3 BAR) PRESSURE RELIEF VALVE (1/2" 3 BAR)
Ariston part no. 573172
£18.28
80 Part number 573528, GASKET 1/2" GASKET 1/2"
Ariston part no. 573528
£1.13
81   OBSOLETE PIPE (SAFETY VALVE)
Ariston part no. 998019
 
82 Part number 573576, COMPENSATION TUBE COMPENSATION TUBE
Ariston part no. 573576
£7.22
83 Part number 573325, RIVET RIVET
Ariston part no. 573325
£0.98
84 Part number 569443, SILICONE SEAL SILICONE SEAL
Ariston part no. 569443
£6.30
85 Part number 572138, BURNER JET WASHER BURNER JET WASHER
Ariston part no. 572138
£0.87
86 Part number 998433, BURNER JET (NG 1.30) BURNER JET (NG 1.30)
Ariston part no. 998433
£1.60
86 Part number 998434, BURNER JET (L.P.G. 0.77) BURNER JET (L.P.G. 0.77)
Ariston part no. 998434
£1.49
87 Part number 65100432, GAS PIPE GAS PIPE
Ariston part no. 65100432
£16.01
87 Part number 998729, NOW USE 65100432 PIPE (GAS VALVE) NOW USE 65100432 PIPE (GAS VALVE)
Ariston part no. 998729
 
88 Part number 998732, PIPE (C.H. RETURN) PIPE (C.H. RETURN)
Ariston part no. 998732
£26.60
89 Part number 997153, U-CLIP U-CLIP
Ariston part no. 997153
£1.47
90 Part number 998604, BUTTON (RESET) BUTTON (RESET)
Ariston part no. 998604
£1.13
91 Part number 998571, RESET BUTTON (INSERT) RESET BUTTON (INSERT)
Ariston part no. 998571
£6.53
92 Part number 999148, SELECTOR BUTTON (COMFORT) SELECTOR BUTTON (COMFORT)
Ariston part no. 999148
£6.39
93 Part number 998579, SPINDLE (COMFORT) SPINDLE (COMFORT)
Ariston part no. 998579
 
94   CABLE (CLOCK)
Ariston part no. 999406
£2.58
95 Part number 998862, CABLE (P.C.B.-DETECTION ELECTRODE) CABLE (P.C.B.-DETECTION ELECTRODE)
Ariston part no. 998862
£6.85
96 Part number 569720, BLIND GROMMET BLIND GROMMET
Ariston part no. 569720
£2.44
97 Part number 998517, O-RING O-RING
Ariston part no. 998517
£1.00
98 Part number 65100251, IGNITION ELECTRODE (R.H.) IGNITION ELECTRODE (R.H.)
Ariston part no. 65100251
£6.32
98 Part number 998623, NOW USE 65100251 ELECTRODE (IGNITION R.H.) NOW USE 65100251 ELECTRODE (IGNITION R.H.)
Ariston part no. 998623
 
99 Part number 65100250, IGNITION ELECTRODE (L.H.) IGNITION ELECTRODE (L.H.)
Ariston part no. 65100250
£6.32
99 Part number 998622, NOW USE 65100250 ELECTRODE (IGNITION L.H.) NOW USE 65100250 ELECTRODE (IGNITION L.H.)
Ariston part no. 998622
 
100 Part number 998624, IONISATION ELECTRODE IONISATION ELECTRODE
Ariston part no. 998624
£6.30
101 Part number 998147, IGNITION ELECTRODE CABLE RUBBER IGNITION ELECTRODE CABLE RUBBER
Ariston part no. 998147
£4.28
102   PANEL (R.H. SIDE)
Ariston part no. 995923
£5.45
102   OBSOLETE PANEL (COMBUSTION CHAMBER - R.H.SIDE)
Ariston part no. 998599
 
102   NOW USE 995923 PANEL (COMBUSTION CHAMBER - R.H.SIDE)
Ariston part no. 998963
 
103   FRONT PANEL
Ariston part no. 65100555
£11.25
103   NOW USE 65100555 PANEL (COMBUSTION CHAMBER FRONT)
Ariston part no. 998598
 
103   OBSOLETE PANEL(COMBUSTION CHAMBER FRONT
Ariston part no. 998924
 
104   FLUE HOOD
Ariston part no. 65101367
£102.34
104   FLUE HOOD
Ariston part no. 65102262
£38.75
104   NOW USE 65101367 FLUE HOOD
Ariston part no. 998925
 
104   NOW USE 65102262 FLUE HOOD
Ariston part no. 999210
 
105 Part number 995995, PANEL (INSULATION - FRONT) PANEL (INSULATION - FRONT)
Ariston part no. 995995
£9.43
105 Part number 995996, PANEL (INSULATION - FRONT) PANEL (INSULATION - FRONT)
Ariston part no. 995996
£12.59
105 Part number 998638, NOW USE 995995 PANEL (INSULATION - FRONT) NOW USE 995995 PANEL (INSULATION - FRONT)
Ariston part no. 998638
 
105 Part number 998895, NOW USE 995996 PANEL (INSULATION - FRONT) NOW USE 995996 PANEL (INSULATION - FRONT)
Ariston part no. 998895
 
106 Part number 65105371, SIGHT GLASS - GASKET SIGHT GLASS - GASKET
Ariston part no. 65105371
£6.02
106 Part number 998076, NOW USE 65105371 GASKET (SIGHT GLASS) NOW USE 65105371 GASKET (SIGHT GLASS)
Ariston part no. 998076
 
107 Part number 65105371, SIGHT GLASS - GASKET SIGHT GLASS - GASKET
Ariston part no. 65105371
£6.02
107 Part number 998075, NOW USE 65105371 SIGHT GLASS NOW USE 65105371 SIGHT GLASS
Ariston part no. 998075
 
108 Part number 65105370, PANEL (FRONT - SEALED CHAMBER) PANEL (FRONT - SEALED CHAMBER)
Ariston part no. 65105370
£36.59
108 Part number 65101606, NOW USE 65105370 PANEL (FRONT - SEALED CHAMBER) NOW USE 65105370 PANEL (FRONT - SEALED CHAMBER)
Ariston part no. 65101606
 
108 Part number 999151, NOW USE 65105370 PANEL (FRONT - SEALED CHAMBER) NOW USE 65105370 PANEL (FRONT - SEALED CHAMBER)
Ariston part no. 999151
 
321   OBSOLETE SIT SIGMA GAS VALVE OP. COILS
Ariston part no. 997029
 
331 Part number 998490, CENTRAL HEATING BY-PASS KIT CENTRAL HEATING BY-PASS KIT
Ariston part no. 998490
£19.18
332 Part number 65105065, 3-WAY SPRING KIT (C.H.) 3-WAY SPRING KIT (C.H.)
Ariston part no. 65105065
£56.71
332 Part number 998718, NOW USE 65105065 3-WAY SPRING KIT (C.H.) NOW USE 65105065 3-WAY SPRING KIT (C.H.)
Ariston part no. 998718
 
333 Part number 998975, 3-WAY SPRING KIT (D.H.W.) 3-WAY SPRING KIT (D.H.W.)
Ariston part no. 998975
£19.96
334 Part number 998974, HEATING ACTUATOR BUSH HEATING ACTUATOR BUSH
Ariston part no. 998974
£31.13
351 Part number 998644, O-RING (PUMP) O-RING (PUMP)
Ariston part no. 998644
£4.79
352 Part number 998643, AUTO AIR VENT + O-RING AUTO AIR VENT + O-RING
Ariston part no. 998643
£18.41
353 Part number 998738, GASKET (PUMP HEAD) GASKET (PUMP HEAD)
Ariston part no. 998738
£3.94
354 Part number 996615, KIT (MOTOR PUMP) KIT (MOTOR PUMP)
Ariston part no. 996615
£256.70
354 Part number 998961, NOW USE 996615 PUMP HEAD NOW USE 996615 PUMP HEAD
Ariston part no. 998961
 
354 Part number 999207, NOW USE 996615 PUMP HEAD NOW USE 996615 PUMP HEAD
Ariston part no. 999207
 
372 Part number 571772, MAGNET (MAIN FLOW SWITCH) MAGNET (MAIN FLOW SWITCH)
Ariston part no. 571772
£7.01
373 Part number 571771, SPRING (MAIN FLOW SWITCH) SPRING (MAIN FLOW SWITCH)
Ariston part no. 571771
£1.98
374 Part number 571770, TOP CAP (MAIN FLOW SWITCH) TOP CAP (MAIN FLOW SWITCH)
Ariston part no. 571770
£6.79
375 Part number 998172, MICROSWITCH - MAIN FLOW SWITCH MICROSWITCH - MAIN FLOW SWITCH
Ariston part no. 998172
£16.56
381 Part number 998716, BURNER JET FULL KIT (NG) BURNER JET FULL KIT (NG)
Ariston part no. 998716
£23.12
382 Part number 998717, BURNER JET FULL KIT (LPG) BURNER JET FULL KIT (LPG)
Ariston part no. 998717
£25.61



Heating spares made simple this website is secured by Geotrust